Réf : SLAP10000495
Prochainement disponible
Nouveauté

Déville-lès-Rouen (76250) Appartement proche Rouen - 3 pièces

3 Pièce(s)
2 Chambre(s)

Les infos Essentielles

Caractéristiques Valeurs
Code postal 76250
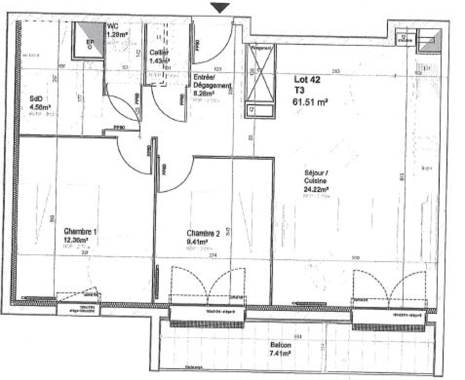
Surface habitable (m²) 61,51 m²
Surface loi Boutin (m²) 61,51 m²
Nombre de chambre(s) 2
Caractéristiques Valeurs
Nombre de pièces 3
Meublé NON
Etage 3
Ascenseur OUI
Caractéristiques Valeurs
Nb de salle d'eau 1
Mode de chauffage Gaz
Type de chauffage Radiateur
Format de chauffage Individuel
Caractéristiques Valeurs
Balcon OUI
Terrasse NON
Nombre de parking 1
Année de construction 2021
Caractéristiques Valeurs
Copropriété NON

SYND'IMMO.GEST vous propose un charmant logement composé d'un séjour avec coin cuisine, de deux chambres, d'une salle d'eau, d'un WC séparé et d'un cellier.

Il bénéficie d'un emplacement parking.

Situé aux portes de Déville, cet appartement est proche des transports en commun, des commerces et des écoles.

Loyer : 710 €

Provision pour charges : 40 € (entretien des parties communes)

Dépôt de garantie : 1 mois de loyer hors charge

Honoraires d'agence ; 676,61 € TTC dont 184,53 € TTC d'état des lieux d'entrée

Disponible le 18/03/2026

Vous souhaitez louer ?
Déposer ma candidature

Les infos Financières

Loyer CC* / mois 750 €
Honoraires TTC charge locataire 676,61 €
Dont état des lieux 184,53 €
Dépôt de garantie TTC 710 €
Charges locatives (Previsionnelles mensuelles les avec regularisation annuelle) 40 €

Nos outils

Imprimer

* CC : Charges comprises

Localisation Du bien

  • Commerces et santé
  • Loisirs
  • Ecoles
  • Transports
  • Pratique

Les infos Energetiques

DPE GES

Montant estimé des dépenses annuelles d'énergie de ce logement pour un usage standard est compris entre 308 € et 417 € . 2021 étant l'année de référence des prix de l'énergie utilisés pour établir cette estimation.

Rez de chaussée
salon/sejour 24.22 m²

salle de bain 4.56 m²

chambre 12.36 m²

chambre 9.41 m²

Intéressé(e) par Ce bien ?

* Champ obligatoire

Les informations recueillies sur ce formulaire sont enregistrées dans un fichier informatisé par La Boite Immo agissant comme Sous-traitant du traitement pour la gestion de la clientèle/prospects de l'Agence / du Réseau qui reste Responsable du Traitement de vos Données personnelles. La base légale du traitement repose sur l'intérêt légitime de l'Agence / du Réseau. Elles sont conservées jusqu'à demande de suppression et sont destinées à l'Agence / au Réseau. Conformément à la loi « informatique et libertés », vous disposez des droits d’accès, de rectification, d’effacement, d’opposition, de limitation et de portabilité de vos données. Vous pouvez retirer votre consentement à tout moment en contactant directement l’Agence / Le Réseau. Consultez le site https://cnil.fr/fr pour plus d’informations sur vos droits. Si vous estimez, après avoir contacté l'Agence / le Réseau, que vos droits « Informatique et Libertés » ne sont pas respectés, vous pouvez adresser une réclamation à la CNIL. Nous vous informons de l’existence de la liste d'opposition au démarchage téléphonique « Bloctel », sur laquelle vous pouvez vous inscrire ici : https://www.bloctel.gouv.fr Dans le cadre de la protection des Données personnelles, nous vous invitons à ne pas inscrire de Données sensibles dans le champ de saisie libre.
Ce site est protégé par reCAPTCHA, les Politiques de Confidentialité et les Conditions d'Utilisation de Google s'appliquent.
contacter l'agence
Ces biens peuvent aussi vous intéresser
Prochainement disponible
Exclusif
Nouveauté
Rouen (76000)

Appartement Lumineux - Rouen

Prochainement disponible
Rouen (76000)

Appartement 3 pièces - Rouen centre

Nous suivre sur